Пирамиды Наполеона, стр. 52
— Вы замечаете закономерность этого ряда?
— По-моему, я как-то раз написал такие числа в лотерее, — уныло сообщил Тальма. — Они оказались невыигрышными.
— Нет, вы только посмотрите, как он образуется! — с воодушевлением продолжил ученый. — Каждое число является суммой двух предыдущих. Для вычисления очередного числа последовательности нужно сложить два последних — тридцать четыре и пятьдесят пять, и получим восемьдесят девять.
— Очаровательно, — нетерпеливо сказал Тальма.
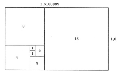
— Самое потрясающее свойство этого ряда заключается в том, что с помощью геометрии его можно представить не просто как числа, а как ряд геометрических фигур. И мы с вами можем создать его, изобразив квадраты. — Он начертил два маленьких квадрата и поставил в них по единице. — Видите, вот два первых числа последовательности. Теперь пририсуем к ним третий квадрат, таким образом, чтобы сумма их сторон составила длину стороны нового квадрата, и обозначим его числом два. Далее, использовав сумму сторон единичного и двойного квадрата, пририсуем к ним тройной квадрат. Понимаете? — Он ловко начертил еще несколько фигур. — Сторона нового квадрата равна сумме двух сторон предыдущих квадратов, так же как и числа в последовательности Фибоначчи образуются из суммы двух предшествующих чисел. Площадь квадратов быстро растет.
Вскоре у него получилась вот такая картинка: [49]

— А что означает то число сверху: один, шесть и так далее? — спросил я.
— Это соотношение длины стороны каждого из квадратов к стороне квадрата предыдущего, — ответил Жомар. — Заметьте, что соотношение стороны квадрата, обозначенного числом три, к стороне квадрата, обозначенного числом два, точно такое же, как соотношение, скажем, у квадратов «восемь» и «тринадцать».
— Я не понимаю.
— Вы же видите, что верхняя сторона квадрата «три» разделена на два неравных отрезка общей точкой квадратов «один» и «два», — терпеливо пояснил Жомар. — Так вот, пропорция между численными значениями сторон смежных квадратов остается постоянной, сколько бы квадратов вы ни добавили к этому чертежу. Более длинный отрезок больше не в полтора раза, а в одну целую шестьсот восемнадцать сотых раза, именно такую пропорцию греки и итальянцы называли золотым числом, или золотым сечением.
Мы с Тальма оба слегка напряглись.
— Вы имеете в виду, что оно каким-то образом связано с поисками золота?
— Да нет же, кретины. — Усмехнувшись, он с досадой мотнул головой. — Только то, что эти пропорции являются совершенными в применении к архитектуре или к памятникам вроде этой пирамиды. Есть нечто в этом соотношении, что невольно радует глаз. И конструкции соборов отражали такие божественные числа. Для достижения гармоничной композиции художники Ренессанса делили свои полотна на прямоугольники и треугольники, воспроизводящие соотношения золотого сечения. Греческие и римские архитекторы применяли его при строительстве храмов и дворцов. В общем, нам придется подтвердить мою гипотезу более точными измерениями, чем мы произвели сегодня, но я предчувствую, что числовое выражение угла наклона этой пирамиды будет точно соответствовать золотому числу, одна целая шестьсот восемнадцать сотых.
— А при чем тут наш наутилус?
— Я подхожу к этому. Для начала представьте линию, опускающуюся вниз, нам под ноги, с вершины этой громадины к основанию, вертикально вниз.
— Учитывая наше восхождение, я могу подтвердить, что это будет очень длинная линия, — заметил Тальма.
— Да, более четырехсот пятидесяти футов, — согласился Жомар. — А теперь мысленно проведите линию из центра пирамиды к ее внешней грани.
— Она будет равна половине ширины основания, — рискнул я предположить, осознавая, что, как и в беседах с Франклином, могу уловить лишь пару следующих шагов его рассуждений.
— Совершенно верно! — воскликнул Жомар. — У вас есть математическая интуиция, Гейдж! Теперь, представив линию, протянувшуюся от основания внешней стороны сюда к нам, к вершине пирамиды, мы получим правильный треугольник. Мое предположение заключается в том, что если опущенный нами к основанию перпендикуляр принять за единицу, то сторона поднимающегося к вершине треугольника будет равна одной целой шестистам восемнадцати тысячным — то есть мы получим ту самую гармоничную пропорцию, что отражена в нарисованных мной квадратах!
На его лице отразилось ликование. А на наших — явное недоумение.
— Ну как же вы не понимаете! Эту пирамиду построили в соответствии с числами Фибоначчи, квадратами Фибоначчи, с золотым числом, которое все художники считали гармоничным. И даже если мы того не осознаем, оно является истинной гармонией!
Тальма бросил взгляд на две соседние пирамиды.
— И все они построены именно так?
Жомар покачал головой.
— Нет. Я подозреваю, что большая пирамида имеет особое назначение. Она подобна книге, что-то рассказывающей нам. Она уникальна, хотя причины я пока не понимаю.
— Извините, Жомар, — сказал журналист. — Я, конечно, счастлив, что вас это все так порадовало, но тот факт, что воображаемая линия равна примерно одной целой и шести десятым, как вы говорили, представляется слишком уж ничтожной причиной для построения пирамиды, которой еще предназначено как-то отражать полушарие, или для сооружения пустой гробницы. И если ваши гипотезы хоть отчасти верны, то, вероятнее всего, древние египтяне были по меньшей мере так же безумны, как умны.
— Ах, мой друг, вот тут-то вы как раз и ошибаетесь, — радостно ответил ученый. — Я не виню вас за скептицизм, поскольку и сам целый день не замечал очевидного, пока остроглазый Гейдж не помог мне отыскать отпечаток наутилуса. Вы понимаете, последовательность чисел Фибоначчи переводится в геометрическую фигуру Фибоначчи, отображая один из самых прекрасных узоров в природе. Давайте нарисуем дугу, проходящую по нашим квадратам. — Он перевернул свой чертеж. — Смотрите, у нас получается вот такая кривая: [50]

— Вот! И на что это похоже?
— На наутилуса, — рискнул высказаться я.
Наш спутник был чертовски умным, хотя я еще не понимал, куда он клонит.
— Совершенно верно! Представьте, что я дорисовал этот чертеж, добавив квадраты «двадцать один», «тридцать четыре» и так далее. Эта спираль будет продолжать закручиваться, набирая витки и становясь все больше похожей на нашего наутилуса. И такой спиральный узор можно встретить повсюду. Если от последовательности Фибоначчи перейти к ее геометрической интерпретации, а затем от геометрического отображения перейти к природе, то вы обнаружите великое множество его повторений, эту совершенную спираль создал сам Господь. Вы обнаружите спираль в зародыше цветка или в семечке сосновой шишки. Лепестки многих цветов повторяют числа Фибоначчи. У лилии три лепестка, у лютика — пять, у дельфиниума — восемь, у ноготков — тринадцать, у некоторых видов астр — двадцать один, а у некоторых ромашек — тридцать четыре. Не у всех растений обнаруживается такой узор, но у многих, поскольку это наиболее результативный путь выталкивания растущих семян или лепестков из некоего единого центра. И он необычайно красив. Итак, теперь мы до конца понимаем, какие чудеса скрывает эта пирамида! — Он удовлетворенно кивнул головой, радуясь своему новому объяснению.
— Она как-то связана с цветами? — спросил Тальма, освободив меня от проявления тупоумия.
— Нет, — с важным видом ответил Жомар. — То, на что мы забрались, месье журналист, не является просто картой мира. Это даже не образ Бога. Это есть, в сущности, некий символ всего сотворения, самой силы жизни, математическое представление жизни нашей вселенной. Эта каменная гора включает в себя не только божественный смысл, но и тайны самого существования. В ее размерах зашифрованы фундаментальные истины нашего мира. Числа Фибоначчи суть природа в ее наибольшей эффективности и красоте, вершина божественного мышления. И эта пирамида воплощает их и посредством воспроизведения этих воплощений приближается к образу самого Бога. — Он мечтательно улыбнулся. — Вот так вот, за тысячелетия могли позабыться все достижения древних мудрецов, но вся познанная ими истина жизни сохранилась в соразмерности этого первого великого сооружения.